ДЕТСКОЕ ИГРОВОЕ ОБОРУДОВАНИЕ PLAY «ВА-01.08»

Цена
Цена по запросу

Характеристики

Характеристики
  • Страна производства: Россия
  • Код изделия: Н145470
  • Серия: PLAY
  • Масса: 510 кг
  • Высота, см: 339 см
  • Ширина, см: 421 см
  • Длина (глубина), см: 393 см
  • Материал: металл
  • Размещение: на улице
  • Особенности комплектации: горка
  • Возрастная группа: 4-6, 7-10, 11-14
  • Способ установки: бетонирование
  • Материал ската: металл
  • Сертифицированные по ГОСТу: есть
  • Серия бренда: Play
  • Категория:  Balli, По ГОСТу, Play, Во двор, С горкой, Детские площадки

Описание

Устанавливается на детских уличных площадках.

Состоит из металлического каркаса, канатной сетки, ограждения, мостика, двух открытых горок и вставки с иллюминатором.

Все материалы безопасны, устойчивы к различным погодным условиям, УФ-лучам и не поддаются влиянию коррозии.

Все крепежные элементы закрыты составными колпачками и заглушками. Поверхность нижних перекладин — рифленая и антискользящая.

Материалы:

  • Оцинкованная сталь, покрытая порошковой краской;
  • 6-прядный армированный канат 16 мм;
  • HDPE;
  • Нержавеющая сталь;
  • Полиамид.

Характеристики:

  • Возрастная группа: с 5 лет;
  • Масса изделия (кг): 510;
  • Высота свободного падения (мм): 2323;
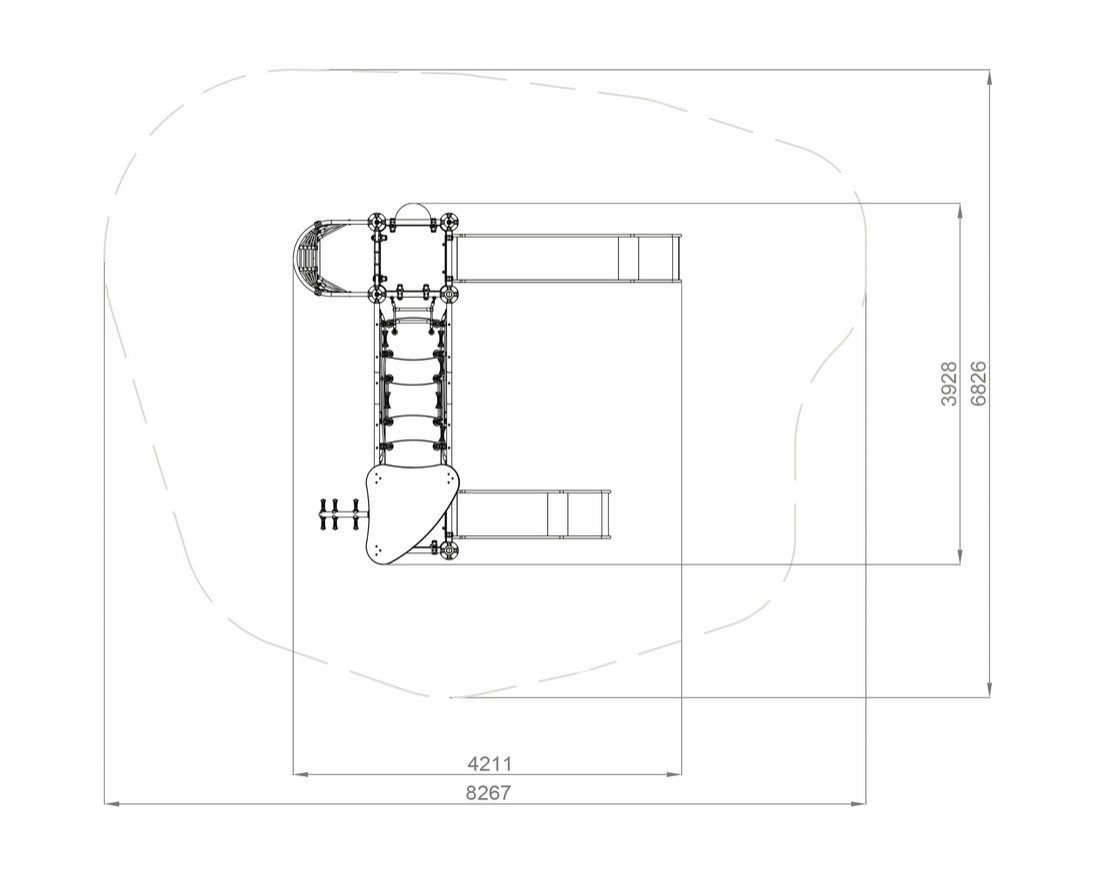
  • Габариты изделия (мм): 3928х4211х3389;
  • Размер зоны приземления (мм): 8267х6826.

Адрес пункта выдачи в Шахтах: пер Красный Шахтер, дом 35.

Самовывоз в Шахтах
По адресу: Шахты пер Красный Шахтер 35

Доставка без выгрузки по Шахтам 2 000 

Установка 577 710 

Новошахтинск, Каменск-Шахтинский, Гуково, Донецк, Белая Калитва, Красный Сулин, Миллерово, Семикаракорск, Зверево, Константиновск, Усть-Донецкий, Чертково, Каменоломни, Тарасовский, Горняцкий

По QR коду

Банковской картой на сайте

Рассрочка -- от Тинькофф

Безналичный платеж для юр.лиц

ВозвратВ течение 14 дней

Гарантия 12 месяцев

Продукция серии PLAY
Похожие изделия